Navigation überspringen Sitemap anzeigen

Umbau ehemalige Kirche in EFH

Einfamilienhaus
  • Umnutzung Kirchengebäude
  • Wohn‑ und Atelierraum
  • Emporen als private Ebenen
  • Neuer Eingangsbau

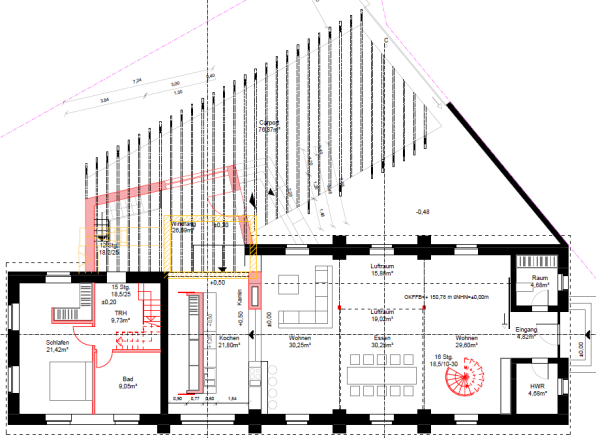
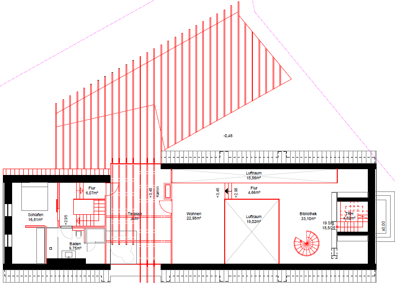
Die ehemalige Dorfkirche Treben wird einer neuen besonderen Nutzung zugeführt. Als Wohn- und Atelierraum dient der besondere Ort dem künstlerisch gelagerten Nutzer als Wohn und Lebensraum mit der Möglichkeit einen Ort der Begegnung zu schaffen. Um diesem Bedürfnis des Nutzers gerecht zu werden, wurde der Innenraum befreit und modern erneuert. Der Einschub von Emporen schafft in den Kopfbereichen des ehemaligen Kirchenbaus eine für die privateren Bereiche dienliche Intimität und ermöglicht gleichzeitig im mittleren Bau die Ausnutzung der vollen Höhe für den Begegnungsraum. 

Diese Wirkung unterstreichend werden die Holzeinbauten in einem großzügigen, schwunghaften Eingangsbau weitergeführt, welcher dem Altbau vorgelagert wird und den Eingang neu akzentuiert. Damit entsteht eine neue Schicht, welche die Oberfläche des Bestands behutsam ergänzt.

Auftraggeber:
Privat
Honorarzone:
III
Planungszeit:
2021-2022
KG 300/400:
1.350.000 €
Leistungsphasen:
1-4
Wohnfläche:
295 m²
Gesamtfläche:
397 m²
Nutzung:
Wohnen
Zum Seitenanfang