Navigation überspringen Sitemap anzeigen

Reihenhäuser Krostitz

Wohngebäude
  • Reihenhauszeile
  • Bezug zur Dorfstruktur
  • Autarke Hauseinheiten
  • Offene Grundrisse

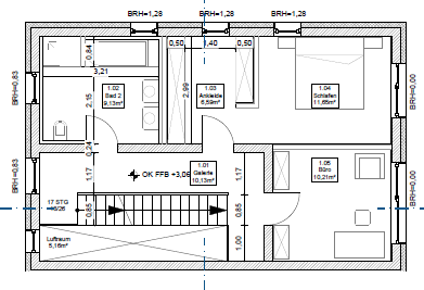
Am südlichen Abschluss des Dorfplatzes in Krostitz wird die bestehende, heterogene Struktur aus kleinteiliger Wohnbebauung und landwirtschaftlichen Lagerhäusern in seiner baufälligen Struktur entfernt. Auf dem frei werdenden Baufeld wird als Abschluss der Siedlung am Rand zum Naturraum Leineaue eine Neubebauung mit einer modernen, aufgelockerten Reihenhauszeile angelegt. Die Anlage orientiert sich an den historischen Gebäudeformen, die zeilenartigen angelegt waren und passt sich damit der überkommenen Dorfstruktur an. Darüber hinaus werden die einzelnen Häuser der Anlage durch Vorsprünge strukturiert und erzeugen damit ein Gesamtbild, dass dem Maßstab des Ortes entspricht.

Jedes Haus funktioniert dazu als autarke Einheit. Es verfügt über eine eigene Versorgung und einen eigenen Wirtschaftszugang in den jeweiligen Gartenbereich. Der Gartenbereich wird dabei dem Umland entsprechend offen gestaltet und lediglich durch eine Pflanzwand zum vorderen Parkplatz abgetrennt. Die Struktur der Grundrisse ermöglicht eine moderne offene und flexible Nutzung der Räumlichkeiten, wobei sich die Hauptnutzräume nach Süden zum offenen Umland öffnen. Durch die eingeschobene Treppe und den Luftraum entsteht innerhalb des Hauses eine offene und gliedernde Struktur, die dunkle Räume und nicht nutzbare Nebenbereiche vermeidet. Damit entsteht ein hochwertiger Wohnraum am Rand der ruhigen Natur.

Auftraggeber:
Privat
Honorarzone:
III
Planungszeit:
2022-2023
Fertigstellung:
2026
KG 300/400:
2.750.000 €
Leistungsphasen:
1-4
BGF:
1.150 m²
Nutzung:
Wohnen
Zum Seitenanfang