Navigation überspringen Sitemap anzeigen

Neubau Einfamilienhaus

Einfamilienhaus
  • Bungalow
  • Zentrale Kaminstruktur
  • Offene Wohnbereiche
  • Barrierearme Ebene

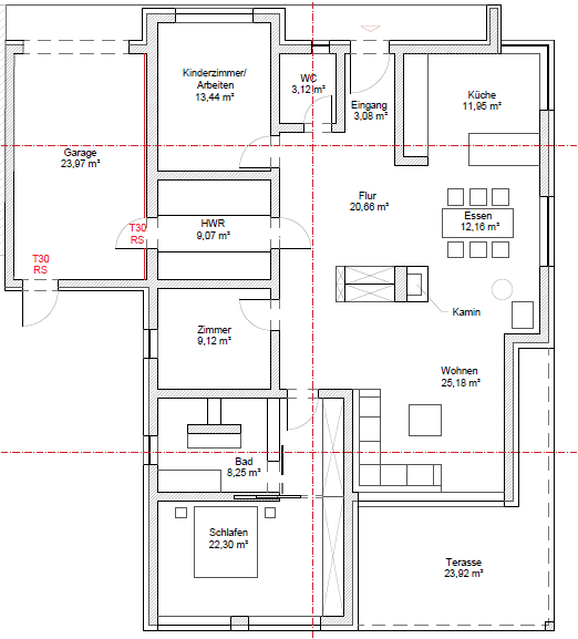
Das Einfamilienhaus wurde 2021 als Bungalow in eine bestehende Siedlung geplant. Die hier aus Doppelhaushälften bestehende Altsubstanz wurde auf dem Grundstück modern interpretiert und an den neuen Bedürfnissen des Wohnens ausgerichtet. Ausgehend vom Kamin als zentralem Element, das die übrigen Räume des Hauses gliedert, ist eine einzige Ebene geplant, die die privatesten Räume auf der Westseite belässt, während sich die Aufenthaltsräume nach Süden und Osten öffnen.

Diese Konfiguration ermöglicht eine freie Zirkulation, wodurch die Korridorflächen entfallen und die Kontinuität von Küche, Esszimmer und Wohnzimmer, die durch große Fenster belichtet werden, verstärkt wird. Das Haus wurde 2022 fertig gestellt und konnte an die Nutzer übergeben werden.

Auftraggeber:
Privat
Honorarzone:
III
Planungszeit:
2021-2022
Fertigstellung:
2022
KG 300/400:
450.000 €
Leistungsphasen:
3-5
Wohnfläche:
145 m²
Gesamtfläche:
190 m²
Grundstücksfläche:
830 m²
Nutzung:
EFH
Zum Seitenanfang